
こんにちは。ペリカン(@Pelican0825)です。
今月は5月末に出た空室2つを埋める活動をしていました。また外壁塗装してもらったアパートの施工チェックをしたり、草刈りを実施したりと比較的落ち着いた月間となりました。合間で、4棟目新築APの企画もすすめています。
ということで、さっそく今月の家賃収入と賃貸経営トピックスです。
【家賃収入と入居率】

家賃収入は139万円ほどです。ここからローン返済(約4割)があります。現在の、ローン残債は1億2,352万となっています。月末時点の入居率は、17戸中 17戸で入居率100%です。
今月は2部屋ほど入退去があり、空室期間があったため大きく減収しています。アパートの空室は以下の空室期間で埋まりました。
- 中古AP:5/31退去→6/23入居(空室期間23日)
- 新築AP:5/24退去→6/22入居(空室期間28日)
この2部屋はどちらも1ヶ月以内に内見→お申し込み→審査通過→入居まで進むことができました。どちらも短期解約違約金(ペリカンは2年以内に設定)をしていたので、ほぼ家賃ロスが無かったです。
2024年は入居率も安定しています。1月〜6月の半期で入居率が99.1%となっており、いままでにない高稼働を記録しています。おそらく、今年後半に退去があるともう少し下がると思いますが最終的には98〜99%くらいで着地するでしょう。
高稼働が続く理由は、やはり群馬のアパートを売却したことが大きいと思います。10世帯のアパートでしたが、田舎のせいか1ヶ月で埋まることもあれば、夏場など閑散期は3〜4ヶ月空くこともありました。これを売却したことで、所有物件は新築ガレージハウスと戸建てが中心となったことで稼働が安定したのでしょう。
私自身この4〜5年くらいは、手間が掛かる物件や稼働が安定しない物件はどんどん売って、資産組み換えを実施中です。それが少しずつ奏功していることを実感しています。引き続き、新築を増やして盤石な体制を築きたいと思います。
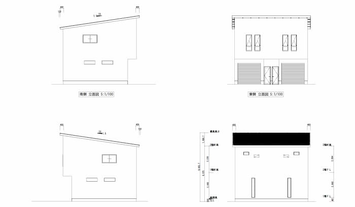
4棟目新築アパートの進捗

4棟目アパートの間取りができあがり、立面図があがってきました。今回も2世帯ガレージハウスで、2階部分が大きくなっている片流れ屋根の長屋アパートになります。
ペリカンは毎回地盤ガチャでハズレばかりで、これまでも1棟目150万、2棟目150万、3棟目70万と地盤改良費が発生しました。今回も地盤調査してもらったら、いつもの調査会社A社では100万くらいかかる見込みでドボンでしたが、B社だと部分改良だけで済みそうとのことです。
現在見積もり取得中ですが、安くて保証も付くなら迷わずB社で行きます。その分の予算は、内装やエクステリアのほうにお金を掛けて価値向上できますからね。上棟は7月末見込みとなっており楽しみです。
今回は、外壁材・内装・設備などすべてにおいて今まで使ったことない材料を使う予定で、仕上がりが非常に楽しみです。
2024年度の家賃収入見込みについて

今年は毎月の家賃収入が180万円ほどになる見込みです。ペリカンはこれを20世帯弱で達成しているところに、最大の特徴があると考えています。
これがもし家賃3〜4万円の単身アパートだったら50〜60世帯規模となりますから、4年に1回の退去としても年間10〜15部屋は入れ替えがあります。毎月のように入退去やトラブル対応と忙しくなるのは避けたいため、いまの投資法に収斂したのだと思います。
デメリットとして世帯数が少ないということは、1件1件の家賃インパクトが大きいため1部屋空くと痛いのではないかと思われることでしょう。しかし実際は、かなり競争力を持たせた新築設計をしているので、空いても速攻で埋まります。
また私の場合は短期解約違約金を2年間2ヶ月という強気設定にも関わらずお申し込み頂けているので、退去があっても空室期間のロスが今のところありません。新築なので10年くらいは大きな修繕が出ないことも収益向上に貢献していますね。
今後の課題としては、家賃収入的にもう少しスケールしたいので、3世帯4世帯のガレージハウスもチャンスがあればやりたいですね。あとは一般的な6世帯〜10世帯程度の共同住宅レジも手掛けたいと思います。こちらは工務店さんのほうで、基本プランを策定中で、競争力の高い物件を割安に建てていただけるようお願いしています。
一方で今後は、歪が少ない投資や出口で苦労しそうな案件をえいやっ!で買うことは避けたいと思います。ここはかなり慎重な私の性格でもありますね。勝つことではなく、まずは負けないことを第一に考えています。
そして金利上昇や地震リスクも見据えていくと、あくまで堅実に手堅く儲けたいと思っています。リスク&リターンのバランスを一番に考えつつ、今後も賃貸経営&規模拡大を楽しんでやっていきたいと思います。
というわけで今月の報告は以上です!いつもブログをご覧いただきありがとうございます。
以下、関連記事です。
▼戸建て投資はあまり儲からないのか?という疑問に対する私なりの見解です。
▼カフェ相談・オンライン相談を開催中です。ご興味のある方はどうぞ!








